Продается однокомнатная квартира №A-174713 на ул. Прохоровская ул. в Малиновском районе

Добавлено: 01.03.2026 Редактировано: 01.04.2026 ! Просмотры: 70 Номер обьявления: 174713

$

40 000
879 $ за м2
exclusive

Описание

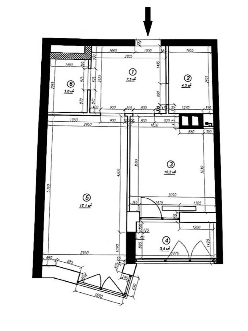
Прохоровская, рекомендуем купить великолепную новую квартиру в новом доме ЖК «Прохоровский квартал» от известной своим безукоризненным качеством строительства строительной компании «Стикон», расположенном в историческом районе Одессы – Молдаванке, полностью новый современный квартал застройки, квартира расположена на 6 этаже 16-этажного дома, общая площадь 45,5 кв.м, просторная комната почти 18 кв.м с выходом на застекленный балкон с панорамным остеклением и удобная кухня-столовая 12 кв.м с выходом на застекленную лоджию, просторные холл, гардеробная и сан. узел, комплекс полностью автономный, оснащен мощными генераторами, подземный и паркинг и гостевые парковочные места, красивая охраняемая придомовая территория, консьерж-сервис, просторная и солнечная современная квартира в отличном районе с исторически сложившейся инфраструктурой в нескольких минутах от центра Одессы! Дом сдан, документы о праве собственности получены.
Основные характеристики:
Комнат/помещений 1 Этаж 6
Этажность 16 S общ. 45.5 м2
S жил./полез. 18 м2 S кух. 12 м2
Район Малиновский р.- н Топ. зона Молдаванка
Улица Прохоровская ул. Категория Квартиры
Ориентир Комитетская Жилой комплекс ЖК Прохоровский квартал
Материал постройки Газобетон Газ Нет
Отопление Домовая котельная Состояние От строителей
Ориентация по сторонам света ЮГО-ВОСТОЧНАЯ Лифт Пассажирский и грузовой
Вид с окон, расположение Двор Высота потолка 3 м.
Год постройки 2023

Связаться с автором:

+380 Показать номер +380 Показать номер

Объект на карте:

Написать сообщение

Похожие объекты:

40 000 $ 1 070 393 грн.
43м²1
Продается 1-комнатная
ул. Михайловская Молдаванка
41 500 $ 1 110 533 грн.
42м²1
Продается 1-комнатная
ул. Прохоровская ул. Молдаванка
40 000 $ 1 070 393 грн.
47м²1
Продается 1-комнатная
ул. Испанский пер. Слободка